Visit
East Coast Modern
prefabs website for more information

East Coast Modern – Mod-2 – White's Lake Build
This week, we're featuring the White's Lake Project by East Coast Modern.
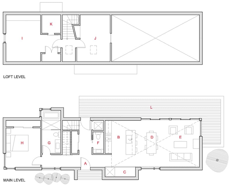
Built in Nova Scotia using East Coast Modern's Mod-2 model, White Lake provides a great example of the right marriage of home and site. The aesthetic of the home fits perfectly with the surrounding forest.
With 20 foot cathedral ceilings in the great room, the view of the forest from the custom tub, lofted workspace, and a full finished basement (with an extra 1,000 square feet of space), this build might just be the perfect lakeside getaway.
Check out the full build story on East Coast Modern's website.






.png)